Parti

Hájenka u Jizerských hor

RASTR architekti

Uprostřed lesů u Jizerských hor vznikl návrh hájenky pro sezónní bydlení. Dům s moderním rázem, který však zároveň respektuje historický odkaz dané lokality, nabízí daleké výhledy do lesů a otevřené krajiny na místě, kde se snoubí samota a klid.

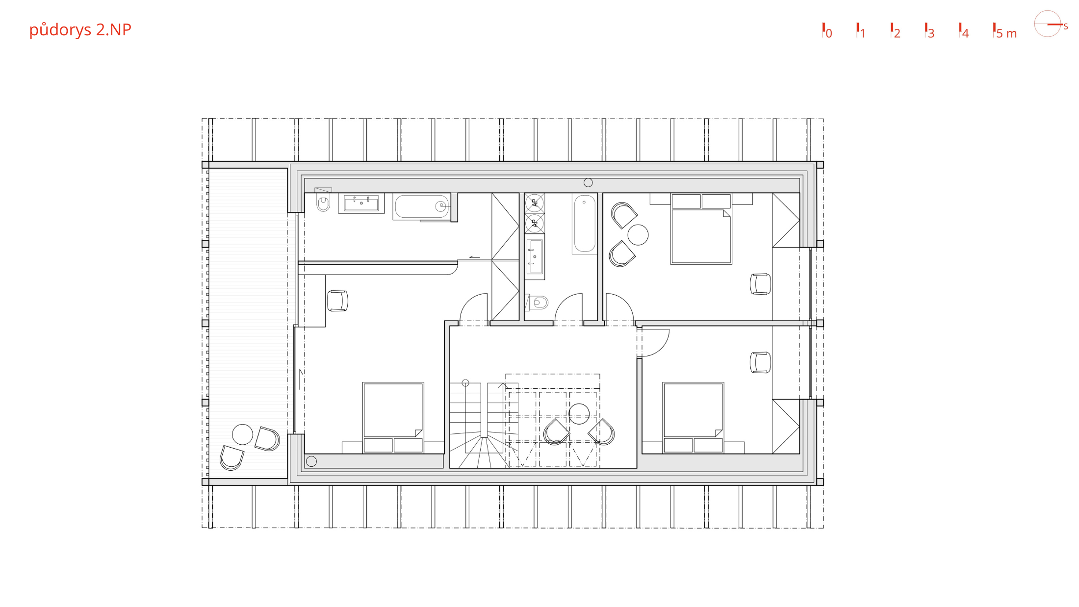
Návrh vychází z požadavků investora a tradičních historických staveb Jizerských hor. Dřevostavba se sedlovou střechou a podezdívkou je navržena v příkrém svahu na půdorysu původního objektu. Dům je funkčně rozdělen dle pater – v přízemí se nachází společenská část otevřená na jih a západ s hlubokými terasami, v podkroví část soukromá s velkorysou lodžií a suterén obsahuje technikou část domu a wellness, které je propojeno přímo se zahradou. Jednoduchost hmoty je doplněna dominantami šikmého laťování, vertikálami dřevěných sloupů a velkými prosklenými otvory. Podtržena je nadčasovými materiály jako jsou dřevo a kámen.

Typ projektu

Rodinný dům – novostavba, Rekreační objekt / chata

Lokalita

Liberecký kraj

Rok dokončení projektu

2025

Rok dokončení stavby

Probíhá

Orientační podlahová plocha

460 m²

Autor vizualizace

Thi Thao Vo

Ateliér

RASTR architekti

RASTR architekti

Zobrazit profil