Parti

Wellness v zahradním domku

ateliér VR archi

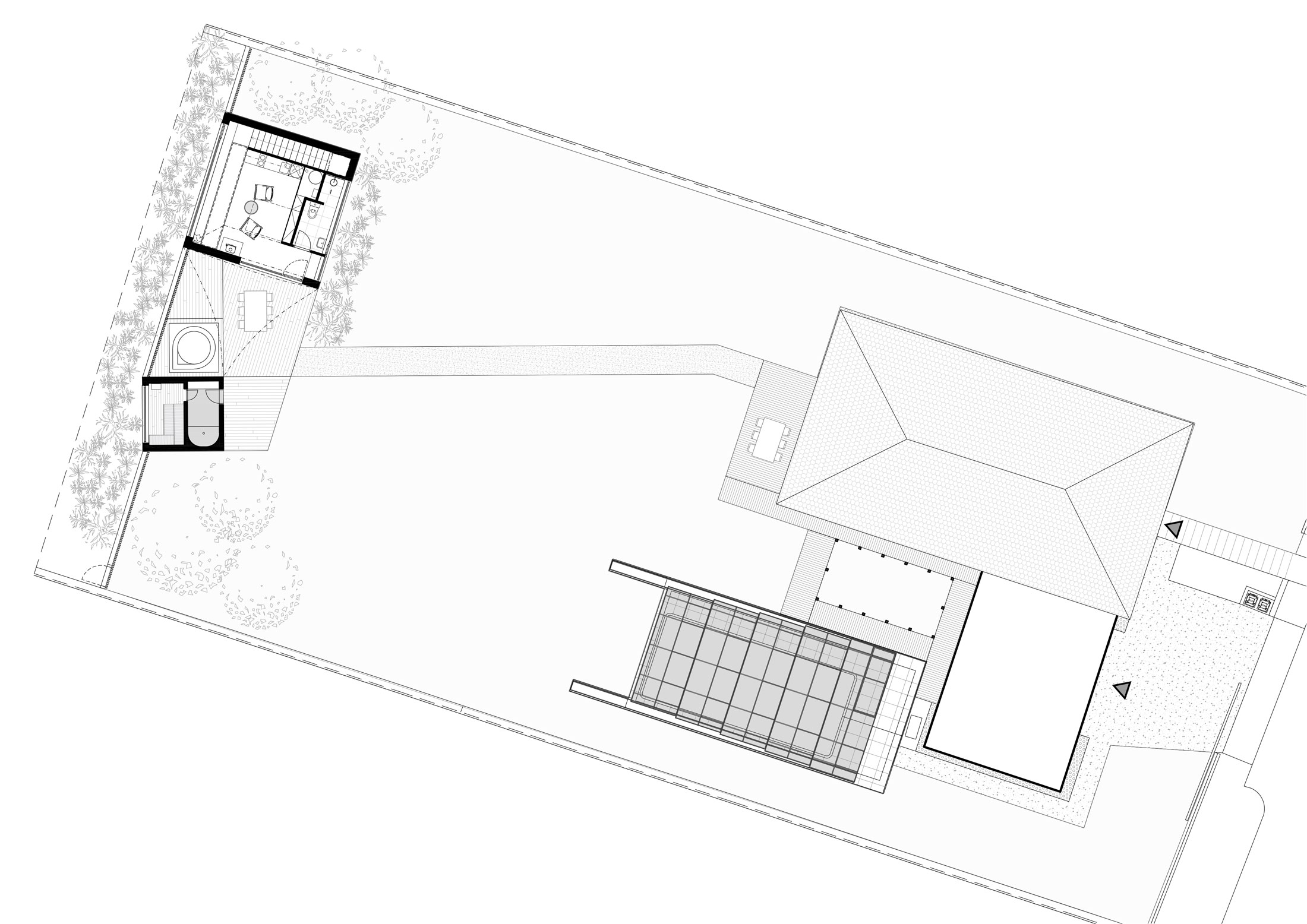
Na konci zahrady rodinného domu v Kamenném Přívozu, kde pole přechází v krajinu, se rodí záměr zahradního domku. Dva dřevěné objekty, spočívající v tichém rozhovoru s přírodou, hledí přes údolí řeky Sázavy do hlubin lesů. Tvarově i svými materiály jsou to trochu bratři, svým postavením a barevností jsou každý trochu jiný. Spojuje je ovšem prostorná společná terasa.

Větší z nich, srdce tohoto útočiště, v sobě ukrývá kuchyň s krbem a malým posezením. Schodiště dolů nás dovede do vinného sklípku prosvětleného skleněným stropem a světlíkem. Menší domek, s fasádou z opalovaného dřeva starobylou japonskou technikou, nabízí pravou finskou saunu se šatnou a sprchou. Unikátnost projektu spočívá v umístění domků dva metry od hranice pozemku, zatímco plot se stahuje na jejich úroveň. Pohledy z oken tak plynou volně do krajiny, nerušené žádnou překážkou. Pozemek zůstává chráněný, a přesto otevřený světu.

Typ projektu

Malá přístavba / doplňková stavba

Lokalita

Kamenný Přívoz

Rok dokončení projektu

2025

Rok dokončení stavby

Probíhá

Orientační podlahová plocha

70 m²

Autor vizualizace

VR archi

Ateliér

ateliér VR archi

ateliér VR archi

Zobrazit profil