Parti

Vesnický dům se zápražím

ateliér VR archi

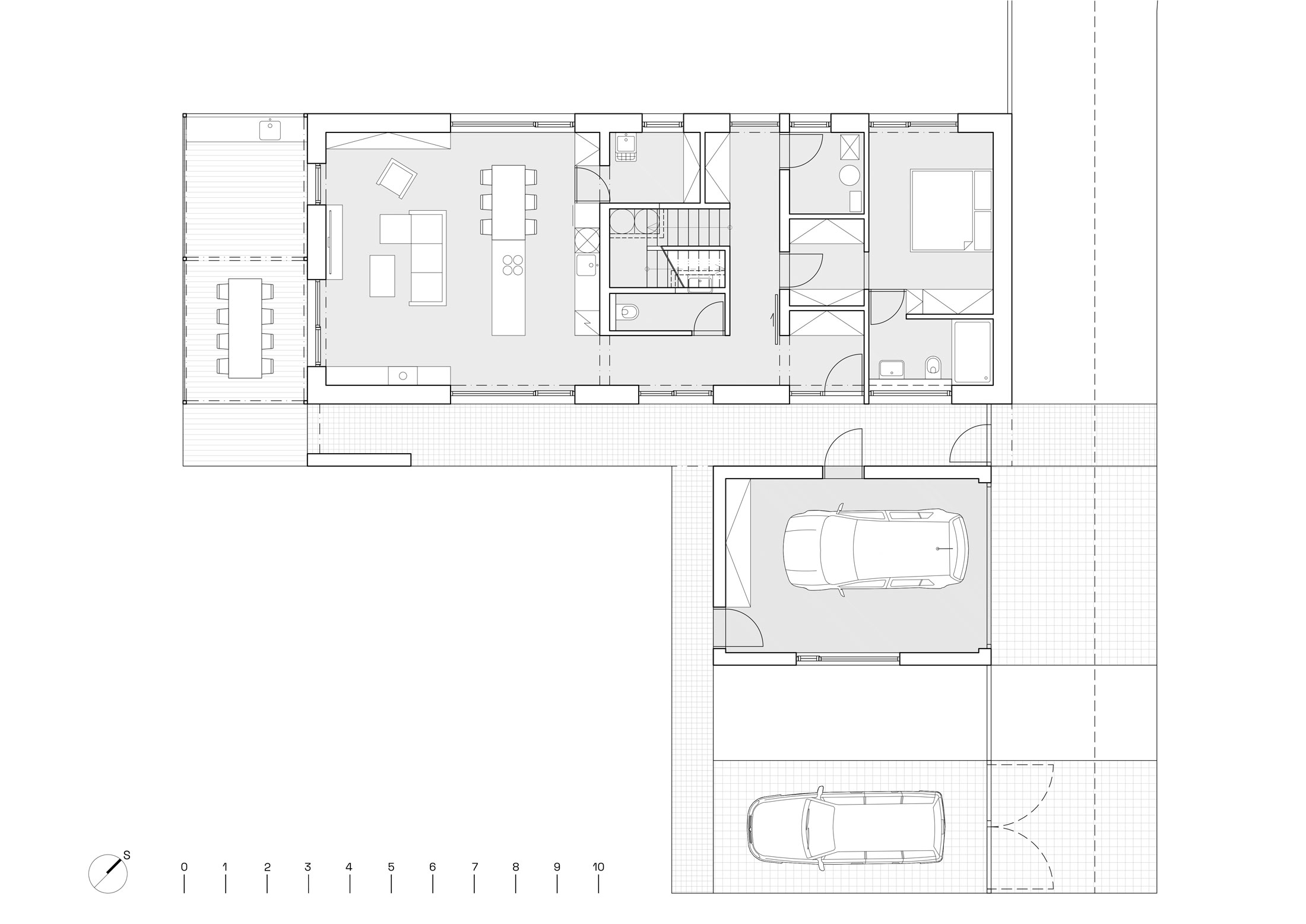
Architektonická studie se zabývá návrhem rodinného domu, který se citlivě začleňuje do půvabné krajiny obce Loučky na Vysočině. Tento dům, situovaný na kraji nové výstavby, reaguje na tradiční architekturu vesnice a přirozeně navazuje na stávající zástavbu. S jeho štítem orientovaným do ulice a obdobnými proporcemi jako ostatní domy v obci, vytváří harmonické spojení s místní architekturou.

Orientace na světové strany a umístění domu na pozemku daly budově její konečný tvar, kdy přesahem střechy vzniklo tradiční zápraží. V létě bude na jihovýchodní fasádě oknům přirozeně stínit, naopak v zimě, kdy je slunce níž, nechá do interiéru proniknout teplé paprsky světla skrz velká francouzská okna.

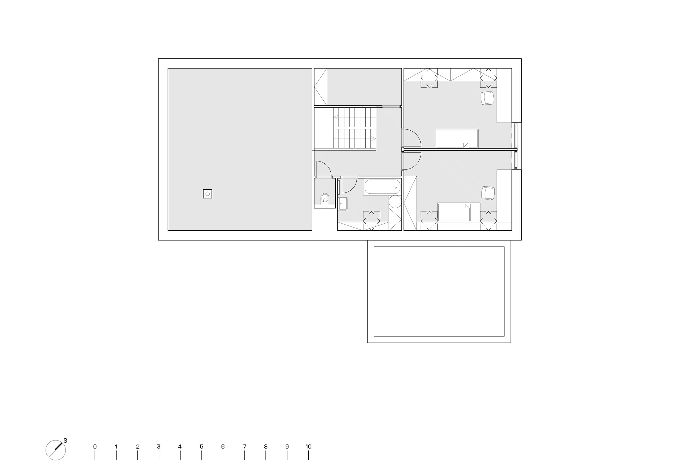
Vnitřní dispozice domu je ovlivněna přáním mladé rodiny mít možnost v budoucnu dům rozdělit a používat jej jako dvougenerační. Malým stavebním zásahem bude mít každá bytová jednotka vlastní vstup a část nevyužívané půdy se promění v obývací pokoj s kuchyní a jídelnou. Tento projekt je příkladem moderního bydlení, které ctí tradice a estetiku venkovského života, a zároveň vytváří příjemné a funkční prostředí pro rodinný život.

Typ projektu

Rodinný dům – novostavba

Lokalita

Vílanec

Rok dokončení projektu

2024

Rok dokončení stavby

Probíhá

Orientační podlahová plocha

200 m²

Autor vizualizace

VR archi

Ateliér

ateliér VR archi

ateliér VR archi

Zobrazit profil