Parti

Rodinný dům s řemeslnou pekárnou

ateliér VR archi

Studie přestavby rodinného domu v pražských Kyjích navazuje na původní architektonický návrh zpracovaný v rámci ateliéru MÓD architekti a dále jej rozvíjí směrem k propojení bydlení a drobného řemesla. Dům se nově otevírá ulici a každodennímu pohybu lidí, kteří místem procházejí.

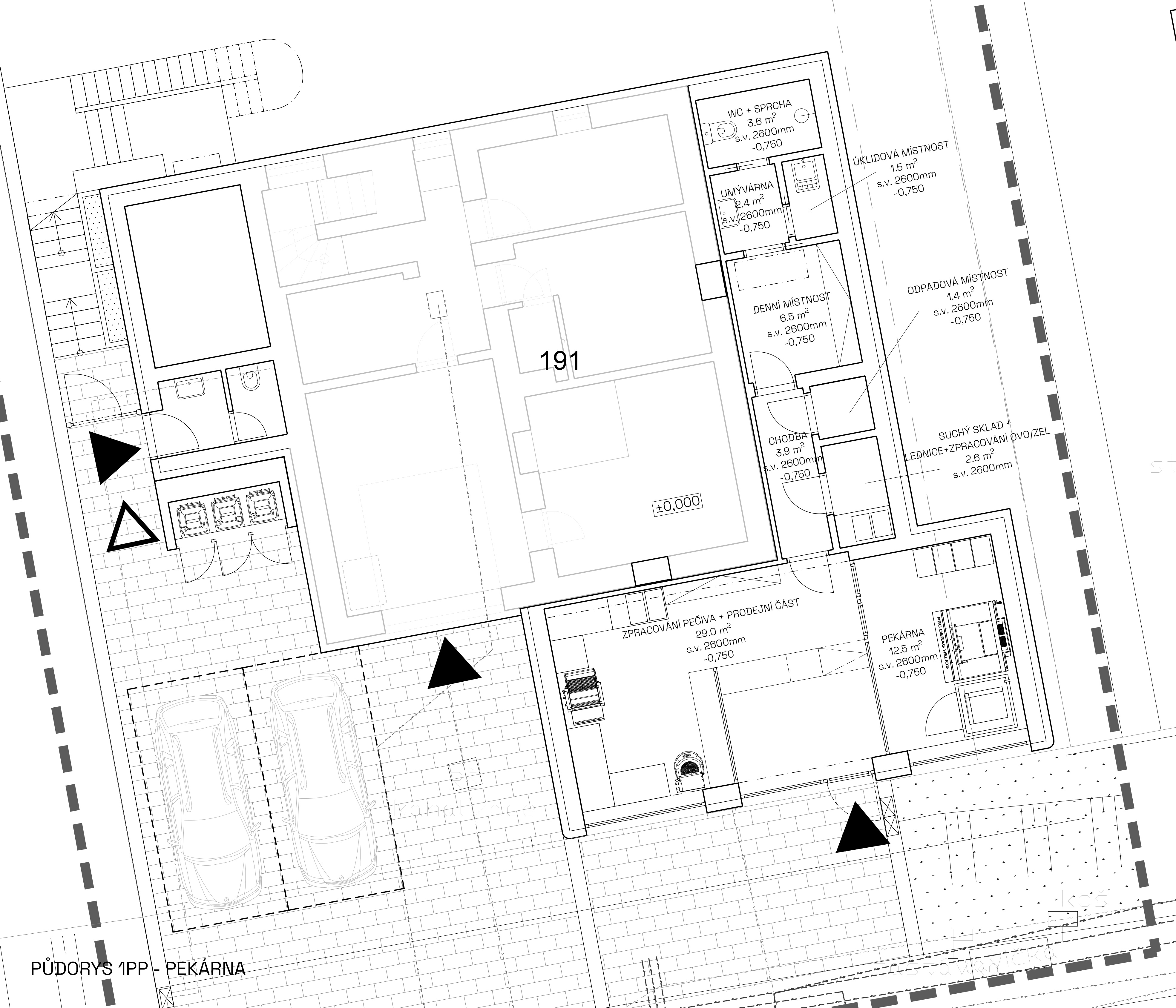
Do suterénu rodinného domu je vložena přístavba řemeslné pekárny, která se zakusuje do stávajícího terénního valu a přirozeně vystupuje do uličního profilu v těsné blízkosti zastávky městského autobusu. Pekárna se tak stává součástí běžné cesty kolemjdoucích – místem, kde je možné nahlédnout do procesu výroby a na chvíli se zastavit. Před vstupem vzniká malá terasa, která rozšiřuje prostor ulice o místo pro posezení a setkávání.

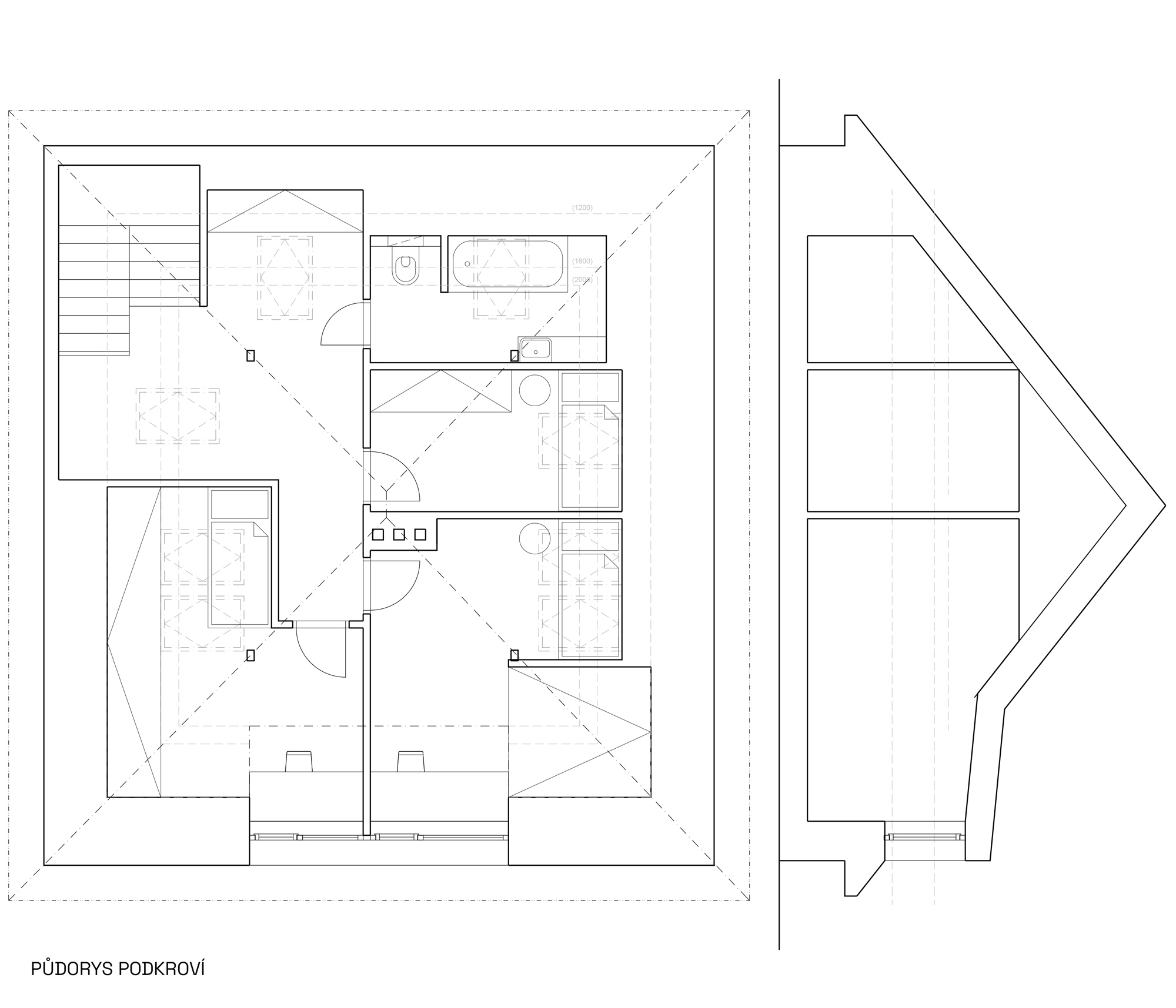
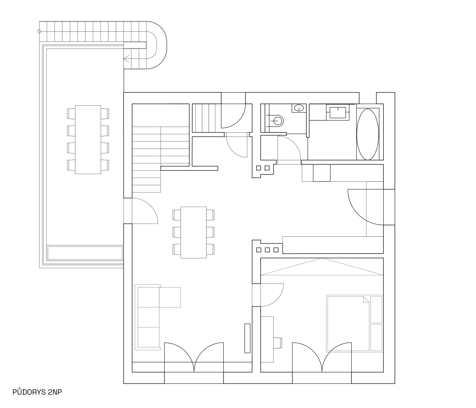
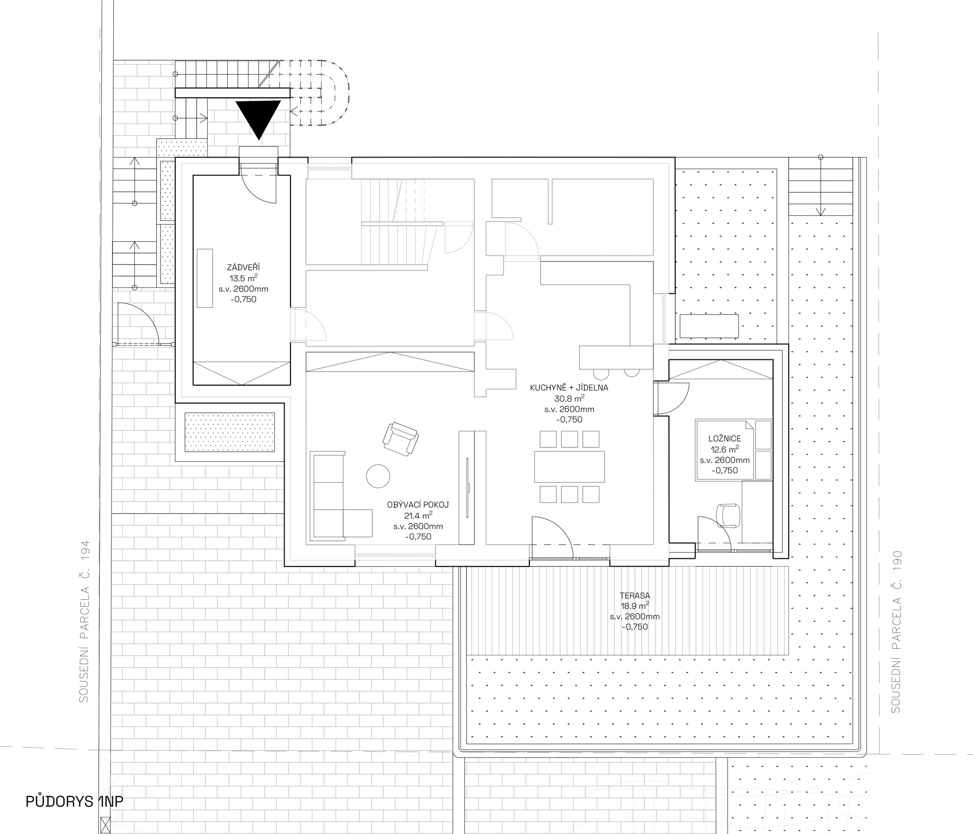
Současně s přístavbou pekárny prochází proměnou i samotný rodinný dům. Návrh pracuje se zobytněním podkroví, doplněním nové obytné části v prvním patře a s lepším propojením domu se zahradou. Terasa ve druhém nadzemním podlaží je se zahradou spojena ocelovým schodištěm a na střeše pekárny vzniká další pobytová terasa sloužící bytové jednotce v 1. NP.

Projekt propojuje soukromý svět bydlení s veřejným životem ulice. Dům se stává místem, které nejen poskytuje zázemí pro každodenní život, ale zároveň nabízí drobný městský moment – vůni čerstvého pečiva, otevřenost a přirozený kontakt s okolím.

Typ projektu

Rodinný dům – rekonstrukce / přestavba, Malá přístavba / doplňková stavba

Lokalita

Praha

Rok dokončení projektu

2025

Rok dokončení stavby

Probíhá

Orientační podlahová plocha

450 m²

Autor vizualizace

VR archi

Ateliér

ateliér VR archi

ateliér VR archi

Zobrazit profil