Parti

Byt s lávkou pro kočky

ateliér VR archi

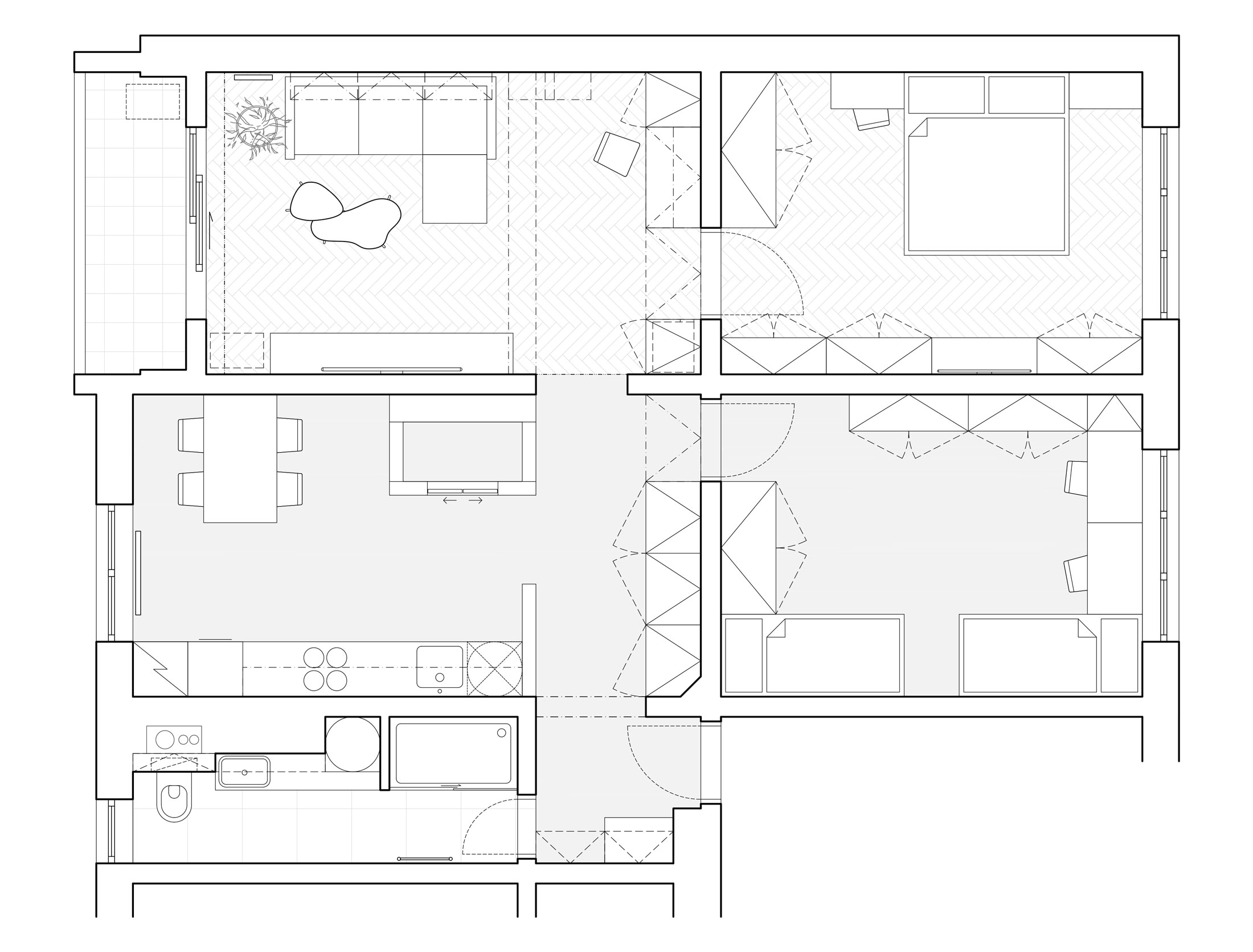
Na naší práci milujeme hlavně to, že není stereotypní, nudná a že se při ní pořád učíme novým věcem. Je důležité neusnout na vavřínech, sledovat trendy, nové technologie, jednoduše být v obraze. Přesto se někdy stane, že nám něco uteče.. Věděli byste, co je to japandi? My jsme na začátku teda neměli tušení a klient nás tímto požadavkem trochu zaskočil. Ještě, že jsou ty internety a tak se mohla uskutečnit tato rekonstrukce bytu s nádechem stylu japandi.

Tento projekt nám rozšířil obzory ještě v jednom směru a to v tom, jaké je to žít s několika kočkami v jednom bytě. Takže přesto že jsme spíš ve psím táboře, tak už víme, jak by měl být velký kočičí záchod, že je dobré mít možnost do kuchyně zavřít dveře a jaká tloušťka polykarbonátu odolá kočičímu náletu. A tak mezi chodbou a kuchyní není zeď, ale příčka z polykarbonátu se šoupacími dveřmi. Výhoda tohoto materiálu je v tom, že do dříve tmavé chodby pustí denní světlo a jednotlivé prostory se opticky propojí.

Typ projektu

Byt – rekonstrukce / interiér

Lokalita

Jihlava

Rok dokončení projektu

2023

Rok dokončení stavby

2023

Orientační podlahová plocha

60 m²

Autor vizualizace

VR archi

Ateliér

ateliér VR archi

ateliér VR archi

Zobrazit profil